Choose an apartment
Availability
Available
Reserved
Sold

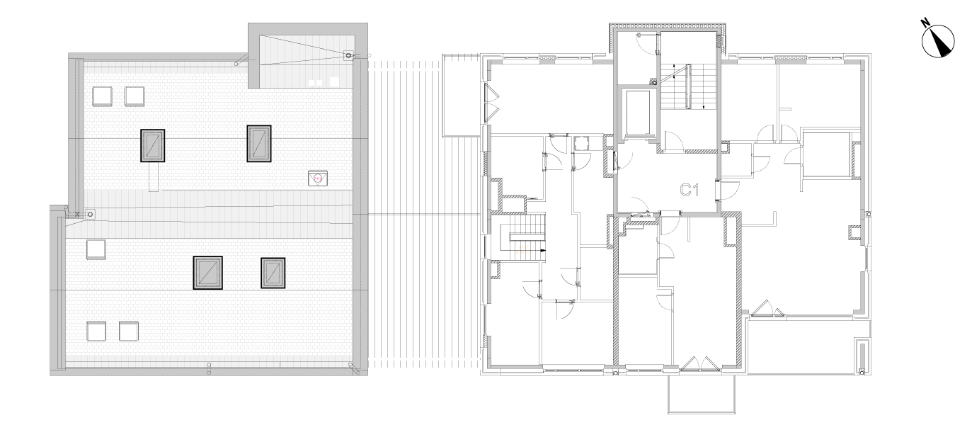
C.1.5.2 / 84.1 m2 / Modern
5 piętro
Budynek C